Bad Mythenquai, Zürich

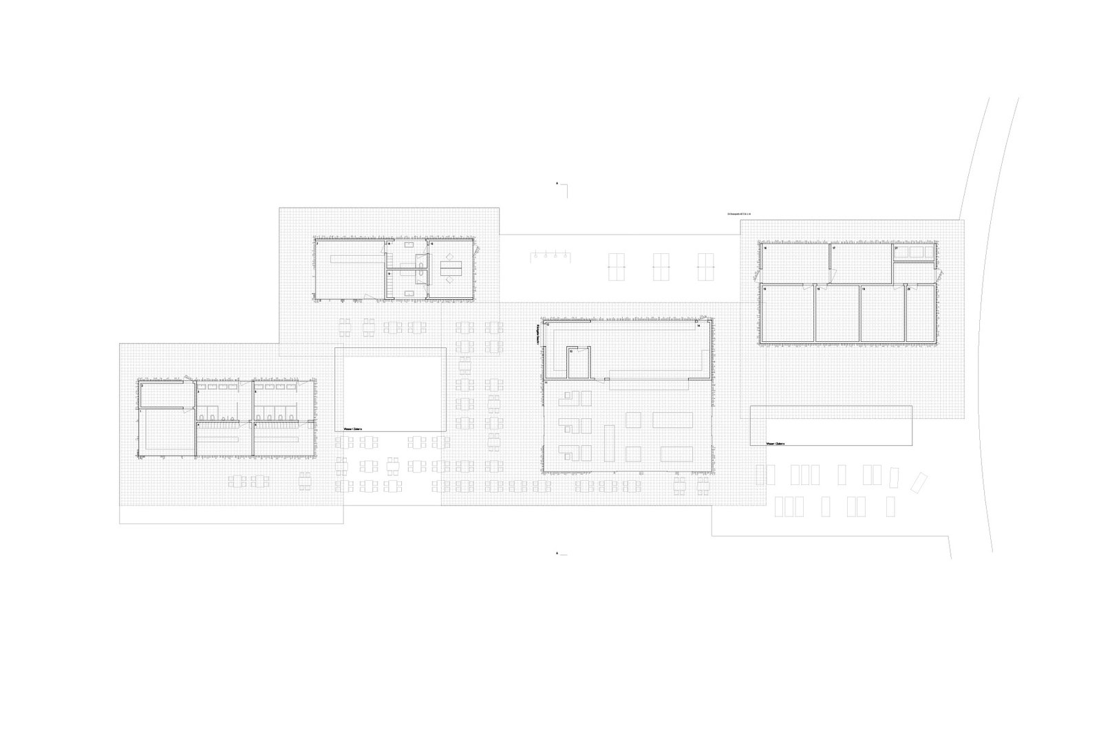
Das erforderliche Raumprogramm des neuen Gastronomiegebäudes wird auf vier eingeschossige Pavillons verteilt. Diese reagieren individuell auf den Baumbestand und werden durch ein übergreifendes Dach zum Ensemble. Die dadurch abgeschiedenen, zum Teil überdachten Aussenräume generieren vielfältige Beziehungen zu den Grünflächen wie auch dem Sandstrand am Seeufer. Dachflächentragwerke aus Leimholz ruhen in unterschiedlicher Höhe auf lichtdurchlässigen Wandstrukturen. Wände und Auskragungen bewirken durch spielerische Anordnung der Balken innerhalb eines bewusst konzipierten Spielraums ein sinnliches Licht- und Schattenspiel.

Auslober : Grün Stadt Zürich, offener Wettbewerb
Ort : Zürich
Projektteam : Jan Henrik Hansen mit Roland Rossmaier Architekten
Status : Wettbewerb abgeschlossen 2010
Schwarzplan
Dachaufsicht
Erdgeschoss
Querschnitt
Ansicht Ost