Haus Candela, Birchwil

Wesentliches gestalterisches Anliegen ist auf Wunsch der Bauherrschaft der bewusste Umgang mit dem Thema LICHT. Die Ausrichtung und Organisation des Gebäudes entspricht einerseits den Wünschen der Bauherrschaft und richtet sich andererseits nach der täglichen Bahn der Sonne.Besondere Aufmerksamkeit wird den beiden Lichträumen gewidmet, welche von oben natürliches Licht in beide Geschosse bringen. Um den unterschiedlichen Bedürfnissen der Bewohner gerecht zu werden, wird zudem eine bewegliche und lichtdurchlässige Schicht in der Fassade eingeführt, die beliebig eingestellt werden kann.Das Gelände des Grundstückes wird so gestaltet, dass das in den Hang gebettete Geschoss von einer Seite her optimal belichtet werden kann. Das sonst introvertierte Geschoss öffnet sich gegen Südosten zur Vormittagssonne und einem eigenen Gartenbereich.Das extrovertierte, auf dasTerrain gestellte Geschoss öffnet sich dem täglichen Sonnenverlauf entsprechend nach drei Seiten. Die Hauptausrichtung ist der Südwesten mit einem vorgelagerten gedeckten Aussenraum und ebenem Garten. Gegen die Strasse im Norden bleibt der Gebäudekörper weitgehend geschlossen. Die Hauptnutzung des repräsentativen, offenen Geschosses sind das Kochen, Essen und Wohnen.

Auftraggeber : privat, Direktauftrag 2005
Ort : Rooswiesen, 8309 Birchwil-Nürensdorf
Projektteam : Jan Henrik Hansen, Rolf Iseli, Manuel Weber
Status : nach Bauprojekt sistiert
Schwarzplan
Dachaufsicht
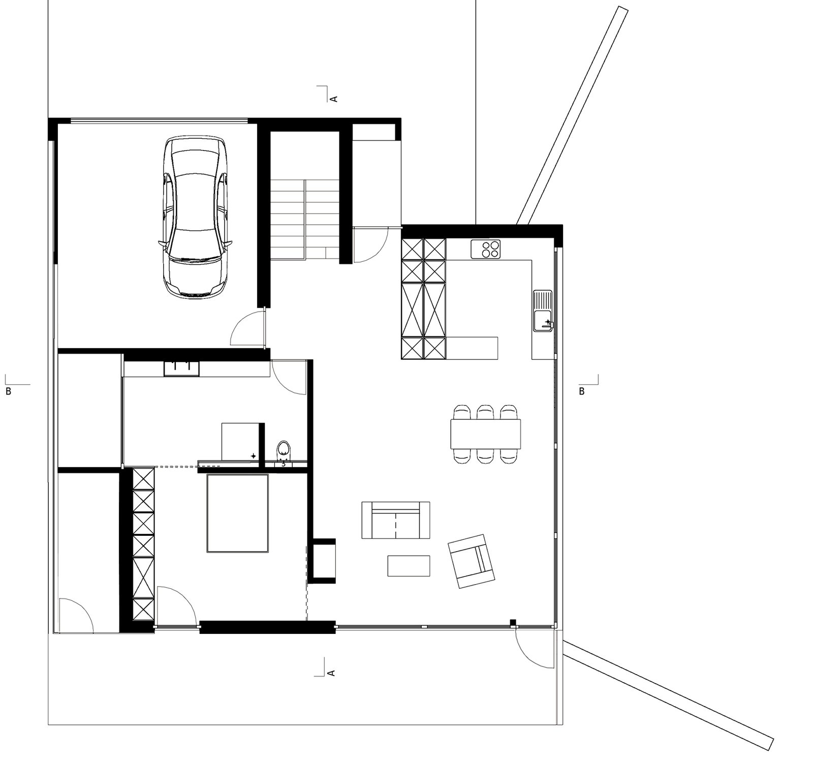
Erdgeschoss
Untergeschoss
Querschnitt
Ansicht Ost
Ansicht West