Swissprinters Areal, Zofingen

Auf einer Fläche von rund 55’000 m2 wird im Rahmen einer Testplanung mit fünf eingeladenen Architekturbüros ein städtebauliches und architektonisches Gesamtkonzept in drei Etappen für das bisher dem Druckereibetrieb gewidmete Industriegebiet in Zentrumsnähe Zofingens gesucht. Dieses soll als Grundlage für eine zukünftige Revision des Bauzonenplans dienen und die Eruiereung eines geeigneten Bebauungs- und Erschliessungskonzepts für das Areal sowie die Festlegung der baulichen Dichte, der Gebäudehöhen, des Freiraum und Parkierungskonzepts sowie des gewerblichen Anteils definieren.

Das Areal gliedert sich mit dem Hauptgebäude in den nordöstlichen Streifen entlang der Bahn und in das südwestliche Baufeld. Grundidee des Projektes ist es, das heutige räumliche Vakuum zu verdichten und entlang diesen Teil-Arealen auf einen zentralen Freiraum zu komprimieren. Er ist Reminiszenz der Siedlungsnaht zwischen Wohnen und Industrie, wird aber positiv besetzt als öffentlicher Parkraum, der neues Bindeglied und Identifikationsraum des Stadtgebiets jenseits der Bahn wird.

Den Kreuzungspunkt der neuen Wegachsen von Parkraum und Ost-West gerichtetem Weg besetzt ein Hochhaus-Solitär. Das Hochhaus ist grossräumlicher Orientierungspunkt für die Wegverbindung zum Bahnhof und für den öffentlichen Aufenthaltsraum.

Das südliche Geviert wird als Wohn-Feld interpretiert mit dem Ziel, „Stadtwohnen im Grünen“ anzubieten. Die Symbiose von städtischem Massstab und Dichte und der Qualität des privaten Grünraums wird in der Typologie einer offenen, punktförmigen Randbebauung umgesetzt. Diese vermag zudem die Anforderungen der Etappierbarkeit optimal aufzunehmen.

Auftraggeber : Swissprinters AG
Ort : Zofingen
Projektteam : ARGE mit Corinna Menn Architektur GmbH, Jan Henrik Hansen, Reinhard Prikoszovich, Gaia Pelizzari, Regula Andriuet, Lorenz Eugster (Landschaftsarchitekt), David Opliger (Verkehrsplaner)
Status : Testplanung auf Einladung, fertiggestellt 2015
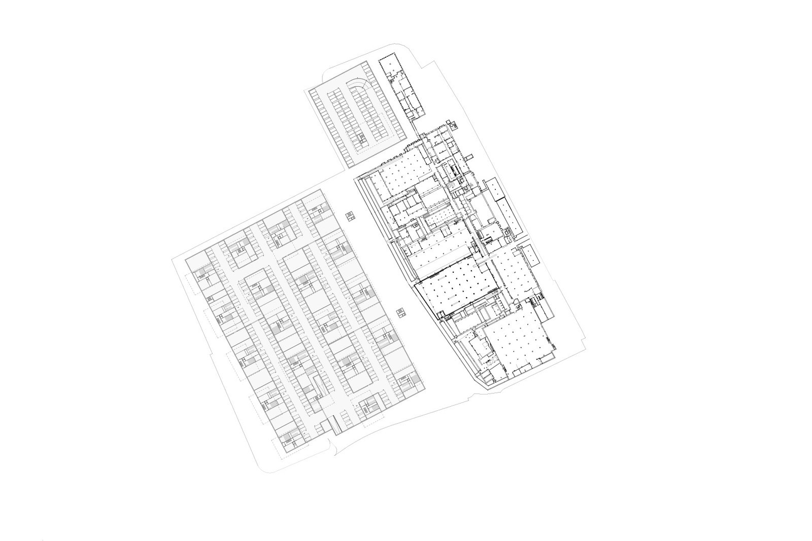
Schwarzplan
Erdgeschoss
Regelgeschoss
Parkierung Etappe 3
Ansicht Ost Hauptgebäude
Ansicht West Mühlemattstrasse
Profilschnitt Ost-West
Profilschnitt Räume unterschiedlicher Öffentlichkeit
Schema Wohnungstypen / Wohnungsgrössen